Loading
Share This
Contact
Scroll Down
Back to portfolio

Bodega Treehouse | Treehouse Engineer

//Bodega Treehouse | Treehouse Engineer

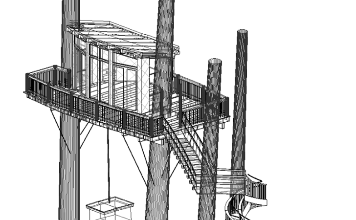
Bodega Treehouse

Category : Specialty

Linchpin provided services to permit this private treehouse so that it could become an overnight rental. Linchpin provided structural engineering for the treehouse structure, its tree attachment, as well as the trees themselves.

READY TO ORDER YOUR PROJECT ?

Contact
Close